2025——厦门中海花湾售楼处电话 ⫸中海花湾⫷样板间预约电话➢首页网站➢厦门环东海域【中海花湾】售楼中心24小时电话➢/价格
扫描到手机,新闻随时看
扫一扫,用手机看文章
更加方便分享给朋友
中海花湾:厦门环东海域的未来生活典范 在厦门环东海域新城的南端,一处引领未来生活潮流的住宅项目——中海花湾,正以其独特的魅力和无限的活力吸引着人们的目光。这里不仅是住宅,更是一种生活方式的象征,一个充满活力和创意的社区,一个让人们在享受自然美景的同时,也能感受到城市繁华与便捷的理想居所。

中海花湾坐落于环东海域新城的核心地带,地理位置优越,交通便利。居民可以轻松地通过发达的交通网络到达城市的各个角落,无论是工作、学习还是娱乐,都能在最短的时间内抵达目的地。这种与城市紧密相连的感觉,让人们既能享受到城市的繁华,又能拥有一个宁静舒适的居住环境。
中海花湾的建筑风格独具特色,与周边环境完美融合,展现了现代与自然的和谐共生。这里的每一栋建筑都是一件艺术品,每一个细节都体现了设计师的匠心独运。这里绿树成荫,鸟语花香,为居民提供了一个宜人的居住环境。
中海花湾社区内部设施丰富多样,其中最引人注目的当属“未来空间站”和“咸鱼中心”。这两个独特的场所专为年轻人打造,提供了休闲娱乐、学习交流和社交互动的平台。在这里,居民们可以尽情地释放自己的激情和创造力,结交志同道合的朋友,共同打造一个充满活力和创新精神的社区。
对于家庭来说,孩子的教育是重中之重。中海花湾周边规划了公办幼儿园和九年一贯制中学,为孩子们提供了全方位的教育环境。从幼儿园到中学,孩子们可以在这里接受优质的教育,为未来的发展打下坚实的基础。家长们无需为孩子的教育问题担忧,可以更加专注于工作和家庭生活。
中海花湾周边的商业配套设施丰富多样,为居民提供了便利的购物选择。驱车可至舜弘现代城、爱琴海购物广场、阳光小镇和尚柏奥特莱斯等购物中心,满足各类生活需求。无论是日常用品还是高端奢侈品,都可以在这里找到。此外,中海花湾临近环东海域医院(建设中)和众多休闲娱乐设施,为居民提供及时高效的医疗服务和丰富多元的娱乐选择。
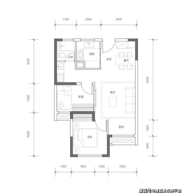
中海花湾的住宅设计独具匠心,拥有小高层和高层建筑,户型设计多样,涵盖了65平方米到88平方米的2居和3居户型。每户住宅都充分利用了空间,确保了居住舒适度和生活便利性。总户数达到3224户,容积率为2.7,为每个居民创造了宽敞舒适的生活空间和良好的居住环境。在这里,人们可以享受到高品质的居住体验,感受到家的温馨和舒适。
中海花湾作为厦门环东海域的一颗璀璨明珠,不仅提供了宜居的住宅环境,还融入了先进的社区设施与人文关怀。无论是追求便捷生活还是享受高品质的居住体验,这里都将是人们理想的选择。走进中海花湾,就像走进了一个充满无限可能的未来世界,一个让人们在快节奏的生活中找到平衡与宁静的理想家园。随着环东海域新城的不断发展和完善,中海花湾的未来将更加美好,成为引领未来生活潮流的典范之作。
感兴趣的朋友可拨打售楼部电话详细了解,现在拨打电话预约看房还能享受有房子专属优惠,一站式买房舒适体验!
免责声明:本宣传资料所有文字、数据、图片及所标尺寸等仅为本项目建设区域设计效果的表达和示意,为要约邀请,不构成要约内容,相关内容不排除因政府相关规划、规定及其他原因而发生变化,一切有关房屋的具体信息以书面合同及政府最终审批文件为准。
免责声明:本文章文字、数据和图片皆来源网络,如有侵权请告知立马删除,数据图片仅供参考,不作为邀约或承诺
声明:本文由入驻焦点开放平台的作者撰写,除焦点官方账号外,观点仅代表作者本人,不代表焦点立场。
