热搜NO1武汉城建·启元售楼处首页发布:文脉核心的稀缺地块-—实时动态--最新价格-户型图-容积率@武汉城建·启元营销中心
扫描到手机,新闻随时看
扫一扫,用手机看文章
更加方便分享给朋友
武汉城建启元售楼处电话☎️400-159-8559转接8888(专人接听)
🌈武汉城建启元营销中心电话:☎️400-159-8559转接8888【营销中心】
🌈温馨提示:拨打400电话,听到嘀声后,输入分机号8888即可!
➤➤➤➤VIP贵宾置业〢欢迎来电咨询
免责声明:(本文章所用图片来源于网络,如有侵权请联系本网站删除!)恭迎品鉴◆◆
4001598559,8888
今年上半年,武汉城建一口气公布了四个四代纯新盘案名:承宁府、江南岸、启元、楚宝里。
其中有两个项目位于一线滨江,一个是入市即热销的武汉城建·江南岸,另一个就是位于二七滨江商务区六期的武汉城建·启元。
武汉城建·启元住宅共分两期开发建设,其中一期规划有7栋住宅,面江由低到高排布,保证了看江房源数量的最大化。
尤其是,最南向三栋楼可无遮挡一线观江,完全是藏品级的存在!

社区内部,项目则大手笔打造了奢华酒店式入户大堂、约1500㎡滨水运动会所、隐奢双泳池、森系度假园林等,实现二七滨江的人居进阶。

除此之外,项目在户型得房率、舒适度方面也有较大突破。
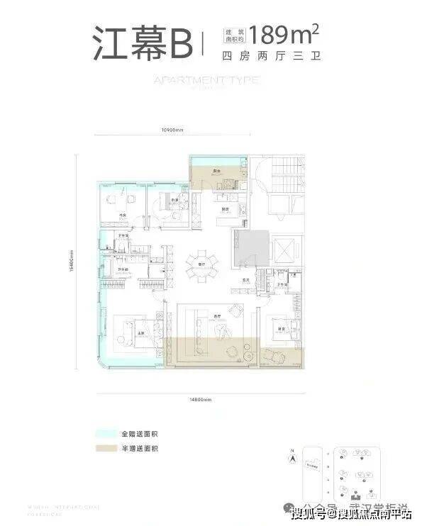
首开的建面约141-189㎡的新四代科技奢宅,以超尺度南向面宽、IMAX级大横厅、主卧270°环幕视野等,优化后至高得房率约97%,叠加开创性的江水源系统,回应二七滨江的居住迭新。

特别值得一提的是,根据城市留言板的最新回复,项目未来就近安排到东侧的长春系小学+七一华源中学,在规划小学建成之前,符合“人户合一”政策即可就近原则统筹安排至长春街三小。
二七滨江地段+一线江景+重磅学区+进阶产品力的多维“王炸”组合,也难怪项目的热度居高不下。
武汉城建启元售楼处电话☎️400-159-8559转接8888(专人接听)
🌈武汉城建启元营销中心电话:☎️400-159-8559转接8888【营销中心】
🌈温馨提示:拨打400电话,听到嘀声后,输入分机号8888即可!
特别说明:
1.本文为要约邀请,不作为要约或承诺;相关宣传内容不排除因政府相关规划、规定及出卖人分期规划、未能控制等原因而发生变化;
2.本文部分图片来自于网络,如涉及版权使用,请联系删除;文本部分图片仅作为推广示意使用,非交付标准,最终以实际交付现状为准;
3.本宣传资料对项目周边学校等教育资源的介绍旨在提供相关信息,并不意味着本公司对就学安排作出承诺。教育资源的名称、办学性质、办学规模、学位设置、开学(班)时间、招生条件、收费标准及招生区域存在调整的可能,应以政府教育主管部门及办学方颁布的政策规定为准;
4.本资料对项目或产品的介绍,旨在提供相关信息,不意味着本公司对此作出了承诺,买卖双方的权利义务以《商品房买卖合同》及附件等协议为准;
5.宣传方保留对宣传资料修改和解释的权利;
声明:本文由入驻焦点开放平台的作者撰写,除焦点官方账号外,观点仅代表作者本人,不代表焦点立场。
