2025【新房笔记】长沙岳麓梅溪湖【金茂璞印梅溪】璞印梅溪售楼处电话⋙预约看房⋙璞印梅溪售楼中心⋙【最新】楼盘百科详情⋙房价⋙户型图➢24小时400热线
扫描到手机,新闻随时看
扫一扫,用手机看文章
更加方便分享给朋友
🔥🔥长沙岳麓梅溪湖【金茂璞印梅溪】🔥🔥
☏【售楼中心电话】✨✽✽✽✽
VIPline:400-159-8559转接8899【贵宾热线】
☏(提前来电预约享内部折扣)✨✽✽✽✽
⫸预约来电尊享线上团购优惠✨✽✽✽✽
⫸开发商售楼处直销,中介勿扰!✨✽✽✽✽
⫸网上售楼中心24小时销售热线〢欢迎您的来电咨询〢
基本信息
参考价格:
洋房单价:13000元/平方米
楼盘概况单价: 13000元/平方米
楼盘概况总价: 167-348万元/套
用户点评:3.87[11条点评]
物业类别:
洋房 联排
项目特色:
低密居所
地铁沿线
改善优选
洋房
建筑类别:
现代
装修状况:
住宅:毛坯;别墅:毛坯
产权年限:
洋房产权为70年,联排产权为70年
环线位置:
二至三环
开发 商:
长沙梅溪璞茂置业有限公司
楼盘地址:
岳麓梅溪湖国际新城二期,油松路以北、竹山屋路以西 ☎️☎️售楼处电话☎️☎️400-159-8559转接5555【已认证】(来电尊享优惠活动)
城市定位:梅溪湖二期的"饼"画得有多圆?
金茂璞印梅溪高举"国际住区"大旗,但梅溪湖二期本质仍是填坑造城的产物。相比一期成熟的CBD基因,二期更像是政策强推的试验田——规划中的中央公园、科创总部基地仍停留在PPT阶段。紧邻招商天青府的地段看似光鲜,实则被夹在梅溪湖与麓谷两大板块的夹缝中,身份定位极其尴尬。开发商鼓吹的"梅溪湖3.0",是真是假,您细品!☎️☎️售楼处电话☎️☎️400-159-8559转接5555【已认证】(来电尊享优惠活动)

交通便利性:地铁房?伪命题!
金茂璞印梅溪距离地铁6号线近,二号线延长线1.6公里以上。梅溪湖二期路网规划看似高大上,但中轴线上规划的超宽主干道更像是割裂社区的利刃,未来车流噪音值得警惕。
地铁优势:离象鼻窝站200米
自驾陷阱:梅溪湖高峰期的拥堵这个大家感受下,梅浦联络线通车前都是纸上谈兵,业主准备好路怒症吧。
教育医疗:薛定谔的"学区房"
捆绑长郡/师大附中分校的套路虽老但有效,但需警惕分校≠本部的真理。梅溪湖二期规划的12所学校多是"贴牌办学",师资稀释已成定局。市妇幼新院区看似高端,但三甲医院与住宅的黄金距离应是3公里,紧邻医院的噪音、人流污染反成硬伤。
生态景观:一边是工地,一边是菜地

金茂自建3万方商业的承诺,在梅溪湖一期览秀城日均客流不足5万的现实面前显得苍白。象鼻窝森林公园的生态牌更像是望梅止渴——直线距离3公里,步行可达性为零。反观深业麓溪云境,虽无景观资源,但背靠麓谷产业人群的刚性消费力更实在。

商业荒漠
招商花园城2025年才开业,金茂大厦虽然开业,但是业态也不多,现阶段业主只能去隔壁天青府底商买包子。
02
总体规划及产品
规划与户型:改善的皮,刚改的骨
规划原罪:用1.2容积率塞进洋房+别墅,牺牲公共空间换利润,楼间距缩水,私密性略差。
这也无可厚非,毕竟开发商的诉求无非就是货值最大化。但是由于容积率的原因,南侧还是有一排洋房,显得不够纯碎。小C好奇的是,2024新规出来后两块地容积率不能平衡,但是咱们这个项目还是平衡考虑的,看来还是公关能力强。
包括该配置的幼儿园也没做,只能说金茂报建部门的同事还是很有办法。其实说实话,幼儿园确实太多了,很多小区的幼儿园都在那里荒废,同时出生率下降那么多,建得幼儿园交给教育局,教育局也不知道该咋运营。
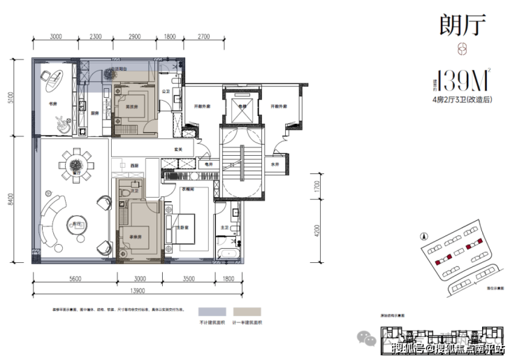
129户型 ☎️☎️售楼处电话☎️☎️400-159-8559转接5555【已认证】(来电尊享优惠活动)

139户型南厅

139户型边厅

170户型顶层复式

193户型顶层复式—边厅

193户型顶层复式—南厅

🔥🔥长沙岳麓梅溪湖【金茂璞印梅溪】🔥🔥
☏【售楼中心电话】✨✽✽✽✽
VIPline:400-159-8559转接8899【贵宾热线】
☏(提前来电预约享内部折扣)✨✽✽✽✽
⫸预约来电尊享线上团购优惠✨✽✽✽✽
⫸开发商售楼处直销,中介勿扰!✨✽✽✽✽
⫸网上售楼中心24小时销售热线〢欢迎您的来电咨询〢
特别说明:
1.本文为要约邀请,不作为要约或承诺;相关宣传内容不排除因政府相关规划、规定及出卖人分期规划、未能控制等原因而发生变化;
2.本文部分图片来自于网络,如涉及版权使用,请联系删除;文本部分图片仅作为推广示意使用,非交付标准,最终以实际交付现状为准;
3.本宣传资料对项目周边学校等教育资源的介绍旨在提供相关信息,并不意味着本公司对就学安排作出承诺。教育资源的名称、办学性质、办学规模、学位设置、开学(班)时间、招生条件、收费标准及招生区域存在调整的可能,应以政府教育主管部门及办学方颁布的政策规定为准;
4.本资料对项目或产品的介绍,旨在提供相关信息,不意味着本公司对此作出了承诺,买卖双方的权利义务以《商品房买卖合同》及附件等协议为准;
5.宣传方保留对宣传资料修改和解释的权利
声明:本文由入驻焦点开放平台的作者撰写,除焦点官方账号外,观点仅代表作者本人,不代表焦点立场。
