2025【首页网站】海口 千江悦 Vip热线丨千江悦 售楼处地址——●千江悦 售楼处24小时电话丨最新价格——最新项目资料!
扫描到手机,新闻随时看
扫一扫,用手机看文章
更加方便分享给朋友
🔥海口 千江悦🔥
☎售楼处电话:400-159—8559转接7777【营销中心】
☎售楼处地址:400-159-8559拨通输入8899【已认证】
🌆 全景户型图鉴 | 🏙️ 城市地标解析 | 🌟 典藏房源速递
🛍️ 繁华配套指南 | 🏛️ 艺术样板间巡礼 | 💰 备案价透明公示
✅✅Vip贵宾置业====欢迎来电预约尊享内部折扣====匠心钜制恭迎品鉴
✅✅温馨提示:看房需提前一个小时预约,感谢您的配合!。
📍项目位置:海口江东新区南渡江东岸椰海大道南侧
🏛开发商:海南富德房地产开发有限公司(港资企业)
物业公司:自持物业
项目占地面积:964亩
项目建筑面积:约270820㎡(其中住宅约224201㎡)
总户数:2030户
🚖 车位:1:1.6地上车位人车分流(3226)
⭐开盘时间:2022年10月24日
⭐交房时间:2024年12年31日
在售的产品产权:70
总栋数:24栋
楼间距:40米左右
朝向:东西向
建筑形态:板楼
🏙容积率:1.5
绿地率:46%
物业费:4.8元
水电费:民水民电
☸ 公摊:18
在售:1#、2#、3#、6#、22#、23#
在售产品:
(一)住宅
面积:98-125㎡房
首付:55万
总高:12-15层
单价:18000-19800,精装
交房时间:2024年年底
付款方式:一次性,按揭
(二)商铺
物业费:3元
水电费:商水商电
在售:清悦畔临街商铺
面积:110-805(剩余10套左右)
套均:250万-2576万
总高:底商(一楼和二楼)
单价:一楼:3.2万左右,二楼2.2万左右,毛坯
交房时间:现铺
付款方式:一次性,按揭
必买的理由
1,《千江悦·东汇》为70年城镇住宅用地,房子属于不动产是永久产权,土地到期后自动续期,民法典第359条已明确规定。
2,位置。项目位于海南自贸港最为核心的江东新区综合服务组团CAZ。(城市是要发展的,我们一定要顺势而为)
3,医疗。两所三甲医院,(省中医院已经建好,市妇幼保健院正在建设中预计明年开业)
4,教育。周边省一级,市直属学校环伺,(东岸小学)
5,自然生态资源优越海南母亲河南渡江穿流而过以及江边带状公园,居住极为舒适。
6,项目容积率1.5。(个人觉得容积率是您买房应该最为看重的一个规划指标)
7,小高层。总高12-15层居住非常的舒适。
8,户型使用率最低95%以上,个别户型使用率达到100%。(一样的建筑面积为什么不买个户型使用率高的小区呢?毕竟现在房价也不便宜,多送您10多个平米就相当于多送您十几二十万。)
9,绿地率46%。更多的绿化空间,更舒适居住体验
10,车位充足。住户2030户,车位3226个。
11,小区配套丰富(篮球场,网球场,迷你足球场,滑板公园,宠物公园,森林探险,一楼架空层泛会所,小区业主双会所,成人儿童双游泳池.....)
12,瓷砖外立面。成本更高,更显高档,历久弥新
13,商业。小区自带数万平米商业,满足业主日常生活需求。
小区配套:双业主会所、架空层泛会所、户外泳池、人工湖水系、篮球场、羽毛球场、小型足球场、户外影院、围合式慢跑道、滑板公园、儿童游乐园等
🏛教育:海口东岸小学(市直属)、北师大(市直属省一级)、海师大(省一级)枫叶国际
医院:海南省中医院(三甲)、海口市妇幼保健院(三甲)售楼处电话☎️400-159-8559转接5555【已认证】来电尊享优惠活动
🏞环境:南渡江带状公园
*项目区位图
*项目鸟瞰图
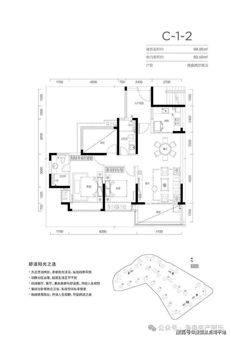
户型图(建筑面积99㎡-105㎡)售楼处电话☎️400-159-8559转接5555【已认证】来电尊享优惠活动
2+1房
阳台🉑改造一间房
—————————————————————————
商铺户型图
🔥海口 千江悦🔥
☎售楼处电话:400-159—8559转接7777【营销中心】
☎售楼处地址:400-159-8559拨通输入8899【已认证】
🌆 全景户型图鉴 | 🏙️ 城市地标解析 | 🌟 典藏房源速递
🛍️ 繁华配套指南 | 🏛️ 艺术样板间巡礼 | 💰 备案价透明公示
✅✅Vip贵宾置业====欢迎来电预约尊享内部折扣====匠心钜制恭迎品鉴
✅✅温馨提示:看房需提前一个小时预约,感谢您的配合!。
特别说明:
1.本文为要约邀请,不作为要约或承诺;相关宣传内容不排除因政府相关规划、规定及出卖人分期规划、未能控制等原因而发生变化;
2.本文部分图片来自于网络,如涉及版权使用,请联系删除;文本部分图片仅作为推广示意使用,非交付标准,最终以实际交付现状为准;
3.本宣传资料对项目周边学校等教育资源的介绍旨在提供相关信息,并不意味着本公司对就学安排作出承诺。教育资源的名称、办学性质、办学规模、学位设置、开学(班)时间、招生条件、收费标准及招生区域存在调整的可能,应以政府教育主管部门及办学方颁布的政策规定为准;
4.本资料对项目或产品的介绍,旨在提供相关信息,不意味着本公司对此作出了承诺,买卖双方的权利义务以《商品房买卖合同》及附件等协议为准;
5.宣传方保留对宣传资料修改和解释的权利
声明:本文由入驻焦点开放平台的作者撰写,除焦点官方账号外,观点仅代表作者本人,不代表焦点立场。
