➢ ➢苏州星合豪宅「晋墅」售楼处位置:400-159-8559转接7788(售楼中心) ➢
➢苏州星合豪宅「晋墅」售楼处电话☎️400-159-8559转接7788(专人接听) ☎️☎️温馨提示:拨打400电话——听到嘀声后——输入【7788】即可通话☎️☎️
➢ ➢苏州星合豪宅「晋墅」售楼处位置:400-159-8559转接7788(售楼中心)
➢ ➢苏州星合豪宅「晋墅」售楼处电话☎️400-159-8559转接7788(专人接听)
☎️☎️温馨提示:拨打400电话——听到嘀声后——输入【7788】即可通话☎️☎️
➢ ➢开发商直售-不收取任何费用-请提前一小时预约看房-享额外售楼处专属内部团购优惠➢ ➢

全苏州翘首以盼许久的双湖超级豪宅项目——星合03号地块项目终于来了!
5月28日,星合双湖顶豪别墅终于揭开神秘面纱,公布案名为「晋墅」,霎时间全苏州哗然!

项目 城市展厅已正式公开,展点位置在就在晋合旗下的苏州洲际酒店,根据项目节点,最快预计8月份就能入市!

作为园区双湖板块近十年来罕见的低密墅居作品「晋墅」,项目容积率1.02,全系洋房+联排产品,其中 洋房建面约230/290/350㎡,别墅建面约450-700㎡左右,全盘约326套,喜欢亲们可以关注起来,销售已经正式进场。
据悉建筑设计、景观设计都是豪宅御用设计团队新加坡SCDA设计团队强悍、设计费很高,无论是颜值还是质感都更甚, 绝对值得期待!

(本效果图仅为过程示意,存在变更可能,不作为销售承诺,本图制作时间为2025年5月,有效期为1个月,敬请留意最新资料)

(本效果图仅为过程示意,存在变更可能,不作为销售承诺,本图制作时间为2025年5月,有效期为1个月,敬请留意最新资料)
星合置地,一家以 “人居艺术革命”为使命的开发商,这次“还好是星合”——星合摘地后,业内说的最多的就是这句话,对,双湖地块遇到了一个大家都认为配得上这块土地,能把这块土地开发更多可能的好开发商。
在苏州豪宅市场,晋合开发的 晋园、水巷邻里、金湖湾、晋府别墅等项目,市场口碑都还不错,很多当时区别于市场的设计,都是从居住需求出发,如今都经住了高端市场的检验。
苏州·晋园别墅丨实景图


苏州·水巷邻里花园丨实景图

苏州·水巷邻里花园丨实景图

苏州·晋府水巷别墅丨实景图
苏州·晋府水巷别墅丨实景图


金湖湾花园丨实景图
包括一些星级酒店,像 洲际酒店、凯悦酒店,或者是甲级写字楼综合体 星合广场,都是有口皆碑。
从品牌产品谱系视角审视, 不难看出这次的设计也很有晋合味,再加上他们多年的豪宅开发经验,结合一贯的“居住主义”路线,还是非常值得一看的~

项目此前也同步公示了A7#楼(别墅)和B1#楼(洋房)的立面示意图和部分户型格局图。
洋房面积约 230/290/350㎡,联排大概约 450㎡-700平,别墅起步非常高!
洋房B1#南立面图如下:层高3.2米

联排A7南立面图如下:首层层高3.9m,2、3层都是3.6m

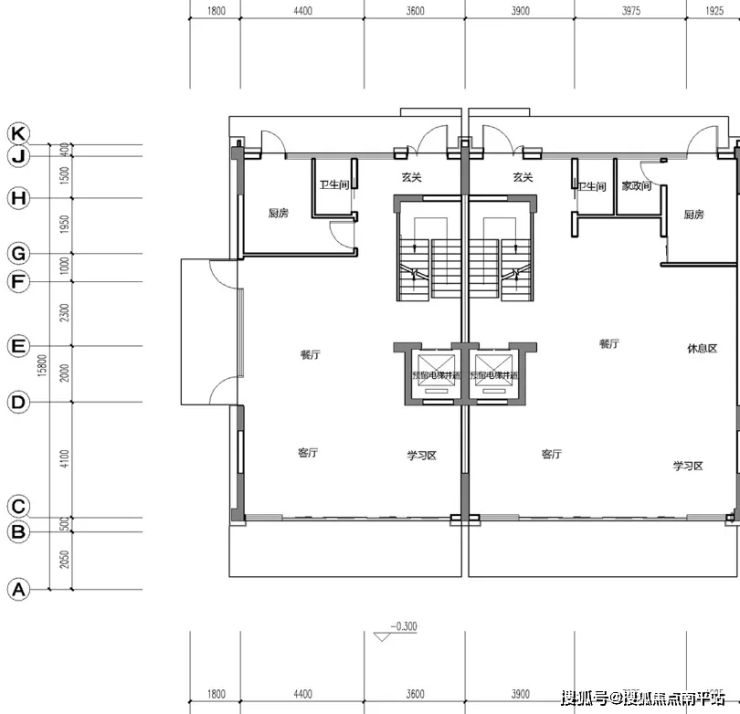
洋房B1#标准层的户型图如下↓,一梯两户设计。

建面约230㎡户型,4房2厅3卫,整体4开间朝南,约17.3米南向宽面, 双套房朝南、双次卧朝北,带独立小型储藏间;
公区尺度非常大, 南北开敞阳台、约7.35米大横厅、中西双厨、独立餐厅…而且南北通透。
主卧套房配置也相当豪,近40平的面积,独立起居室、独立主卫、独立衣帽间全都安排上,超高得房率!

联排A7#首层平面图如下↓

联排面积约450-700㎡

别墅具体户型,据悉后期会调整为当下较为流行的大面宽设计,具体等项目公开的资料再做一些解析,所以大家根本不用担心。
装标方面,地块要求,全装修住宅,装修标准 不低于5000元/平。
➢ ➢苏州星合豪宅「晋墅」售楼处位置:400-159-8559转接7788(售楼中心)
➢ ➢苏州星合豪宅「晋墅」售楼处电话☎️400-159-8559转接7788(专人接听)
免责声明:本宣传资料所有文字、数据、图片及所标尺寸等仅为本项目建设区域设计效果的表达和示意,为要约邀请,不构成要约内容,相关内容不排除因政府相关规划、规定及其他原因而发生变化,一切有关房屋的具体信息以书面合同及政府最终审批文件为准。
免责声明:本文章文字、数据和图片皆来源网络,如有侵权请告知立马删除,数据图片仅供参考,不作为邀约或承诺。